Belgienhalle Berlin

Mit dem Neuen Gartenfeld entsteht zwischen dem ehemaligen Flughafen Tegel und der Havel auf einer Fläche von ca. 59 Hektar ein neuer Stadtteil. Auf einer alten Industriebrache wird hier die Modellstadt der Zukunft für Wohnen, Arbeiten, Kultur und Soziales geplant.

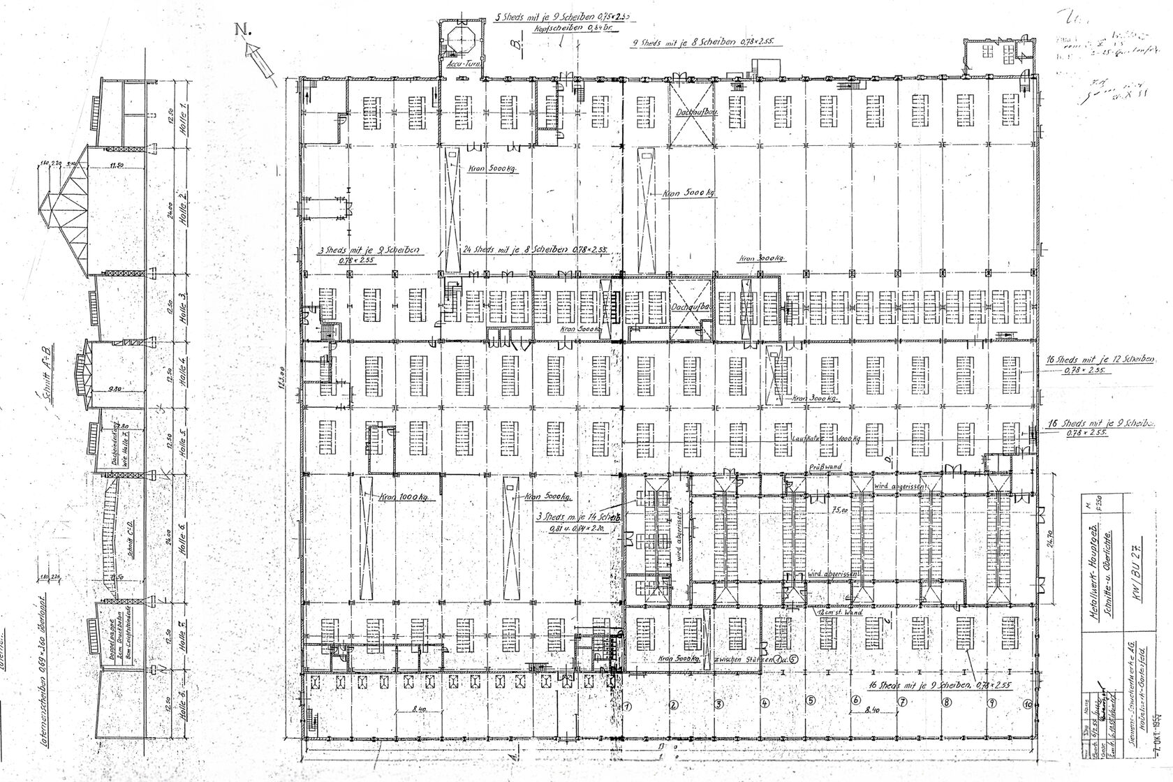
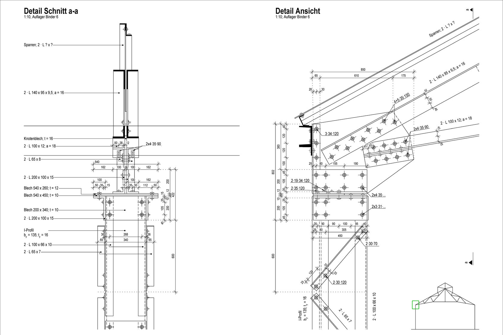
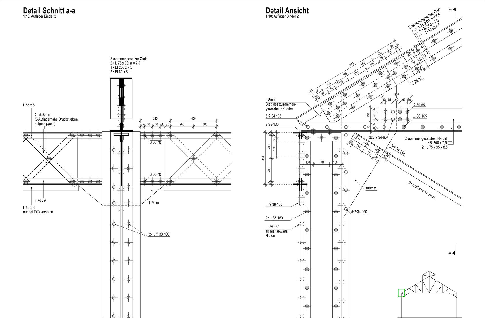
Einen zentralen Punkt dieses neuen Stadtteils bildet dabei die Belgienhalle. Das über 100 Jahre alte Industriedenkmal bietet Platz für Gewerbetreibende, Kulturschallende und kreative Ideen. Die ab 1917 errichtete und mehrfach erweitere Halle beeindruckt durch ihre schiere Größe und gleichzeitig ihre filigrane Konstruktion.

Als Grundlage für die Entwicklung zukünftiger Nutzungskonzepte erfolgte im Sommer 2024 eine konstruktive Bestandsaufnahme, in deren Rahmen die filigrane Stahl-/Eisenskelettkonstruktion einschließlich der Anschlussdetails aufgenommen und dokumentiert wurde.

Auf der Grundlage der gewonnenen Erkenntnisse wurde eine Machbarkeitsstudie für die Installation einer Photovoltaikanlage als eine der ersten Maßnahmen zur Nutzung der Bestandskonstruktion erstellt sowie die je nach Ausbaustufe erforderlichen Verstärkungsmaßnahmen geplant.

 

Fotografien
Aussenaufnahmen Erik-Jan Ouwerkerk
Innenaufnahmen Lindner I Spindler INGENIEURE

Datenschutzhinweise & Cookie-Einstellungen

Wir verwenden Cookies, um Ihnen die Inhalte und Funktionen der Website bestmöglich anzubieten. Darüber hinaus verwenden wir Cookies zu Analyse-Zwecken.

Zur Datenschutzerklärung und den Cookie-Einstellungen.

Allen zustimmennur notwendige Cookies zulassen

Datenschutzhinweise & Cookie-Einstellungen

Bitte beachten Sie, dass technisch erforderliche Cookies gesetzt werden müssen, um wie in unseren Datenschutzhinweisen beschrieben, die Funktionalität unserer Website aufrecht zu erhalten. Nur mit Ihrer Zustimmung verwenden wir darüber hinaus Cookies zu Analyse-Zwecken. Weitere Details, insbesondere zur Speicherdauer und den Empfängern, finden Sie in unserer Datenschutzerklärung. In den Cookie-Einstellungen können Sie Ihre Auswahl anpassen.

PHP Sitzung
Das Cookie PHPSESSID ist für PHP-Anwendungen. Das Cookie wird verwendet um die eindeutige Session-ID eines Benutzers zu speichern und zu identifizieren um die Benutzersitzung auf der Website zu verwalten. Das Cookie ist ein Session-Cookie und wird gelöscht, wenn alle Browser-Fenster geschlossen werden.
Google Maps
Google Maps ist ein Karten-Dienst des Unternehmens Google LLC, mit dessen Hilfe auf unserer Seite Orte auf Karten dargestellt werden können.
YouTube
YouTube ist ein Videoportal des Unternehmens Google LLC, bei dem die Benutzer auf dem Portal Videoclips ansehen, bewerten, kommentieren und selbst hochladen können. YouTube wird benutzt um Videos innerhalb der Seite abspielen zu können.
Vimeo
Vimeo ist ein Videoportal des Unternehmens Vimeo, Inc., bei dem die Benutzer auf dem Portal Videoclips ansehen, bewerten, kommentieren und selbst hochladen können. Vimeo wird benutzt um Videos innerhalb der Seite abspielen zu können.
Google Analytics
Google Analytics installiert die Cookie´s _ga und _gid. Diese Cookies werden verwendet um Besucher-, Sitzungs- und Kampagnendaten zu berechnen und die Nutzung der Website für einen Analysebericht zu erfassen. Die Cookies speichern diese Informationen anonym und weisen eine zufällig generierte Nummer Besuchern zu um sie eindeutig zu identifizieren.
Matomo
Matomo ist eine Open-Source-Webanwendung zur Analyse des Nutzerverhaltens beim Aufruf der Website.